Sold Out
Site Plan

The Location
Chapelton is an exciting new town five miles south of Aberdeen. With tree-lined streets, open green spaces, local shops and neighbourhood squares, Chapelton offers attractive rural living with everything you need nearby. Inspired by the vibrant urban settlements of northeast Scotland, such as Montrose, Stonehaven and St Andrews, the long-term vision of the Elsick Development Company is to create sustainable town with Community at heart of every element of its design.
Numerous road and rail transport links both South and North including the newly opened AWPR make Chapelton well placed to get to where you need to be with minimal fuss.
Approximate driving times:
Stonehaven – 10mins
Portlethen – 5mins
Aberdeen City Centre – 15mins
Westhill – 22mins
Dyce (Airport) – 25mins

The Development
Snowdrop Developments will be building a selection of 16 luxury bespoke homes on extensive plots with open views towards the sea. There will be a choice of four stunning house designs to choose from all with slightly differing external finishes.
The Specification
With a 10 year NHBC warranty, every house specification is of the highest standard continuing our reputation for stunning efficient homes incorporating high quality materials, careful workmanship and great features, all combined with house layouts carefully designed by people for people, we are not a bulk builder and we limit the number of houses we build allowing our fantastic team to maintain the level of quality we deliver, all our homes are built to order allowing our customers choice.
Kitchen
High quality German kitchens with a choice of cabinets/doors and worktops. All kitchens have integrated appliances including oven, microwave, induction hob and fridge freezer.
Bathroom
Quality Laufen white sanitary ware with Hans Grohe taps and showers. Chrome towel rails. Quality wall and floor tiles by Porcelanosa.
Windows & Doors
Pre-finished front and rear door sets. High performance timber double glazed windows.
Electrical
Brushed steel sockets and switches to downstairs public areas. High speed internet and communal TV/Satellite system into property via fibre. CAT6 and Coax to each TV point. Roof integrated solar PV panels. Power to bathroom mirror points.
Internal
High quality, oak veneered internal doors. Skirtings and architraves painted white. Most bedrooms have built in wardrobes (see individual house layouts for further information). Quality ironmongery throughout. White internal walls and ceilings.
External
Granite style slabs paths and patios. Traditional wet dash render and timber cladding where specified (see individual house types for further information).
Energy
High efficiency gas central heating with Solar PV. Wet underfloor heating throughout ground floor.
Please note: The specifications outlined above are for indication purposes only and may vary slightly across different house types. There may be changes throughout the build process to specific brand/model, materials and appliances referred to in the specification. In such cases, an alternative of similar quality will be provided. Any alterations of the specification will be of equal to or greater value, and Snowdrop reserve the right to implement changes to the specification at any time. This information is for guidance only and does not form any part of any contract. All optional upgrades must be paid for in advance. Please consult our Sales Advisor for further information.
CHAPELTON HOUSE TYPE SPECIFICATIONS
THE MACALLAN – 5 BEDROOMS

Front Elevation – The MacAllan

Rear Elevation – The MacAllan

Side Elevation – The MacAllan

Side Elevation – The MacAllan

House Type A – Floor Plans
Ground Floor Plan – The MacAllan

Indicative Room Dimensions
| Entrance Porch | 1.91m x 2.53m |
| Lounge | 4.10m x 6.00m |
| Kitchen/Dining | 4.67m x 9.75m |
| Family Room | 5.07m x 5.24m |
| Bedroom 1 | 3.05m x 3.15m |
| Shower Room | 2.00m x 2.74m |
| Mud Room | 1.85m x 3.95m |
| Utility Room | 1.85m x 2.66m |
| Garage | 5.17m x 7.50m |
| Optional Sun Lounge | 4.18m x 4.28m |
Indicative Room Dimensions
| Bedroom 1 | 2.32m x 5.15m |
| Bedroom 2 | 3.18m x 4.14m |
| Bedroom 3 | 4.10m x 4.14m |
| Bedroom 4 | 3.05m x 3.24m |
| Master Bedroom | 3.48m x 4.72m |
| Dressing Room | 1.70m x 3.50m |
| En-Suite | 1.50m x 3.66m |
First Floor Plan – The MacAllan

THE COLEBURN – 5 BEDROOMS

Front Elevation – The Coleburn

Rear Elevation – The Coleburn

Side Elevation – The Coleburn

Side Elevation – The Coleburn

Floor Plans – The Coleburn
Ground Floor Plan – The Coleburn

Indicative Room Dimensions
| Lounge | 4.73m x 7.70m |
| Kitchen/Dining | 5.50m x 7.95m |
| Family Room | 4.58m x 5.50m |
| Bedroom 1 | 3.50m x 3.76m |
| En-suite | 1.80m x 2.10m |
| Toilet | 2.30m x 2.40m |
| Utility Room | 2.30m x 3.00m |
| Garage | 5.60m x 6.50m |
| Optional Sun Lounge | 4.18m x 4.28m |
Indicative Room Dimensions
| Bathroom | 2.20m x 4.77m |
| Bedroom 2 | 3.20m x 5.80m |
| Bedroom 3 | 3.26m x 3.52m |
| En-suite | 2.37m x 2.85m |
| Bedroom 4 | 3.30m x 3.45m |
| Master Bedroom | 3.68m x 4.72m |
| En-suite | 2.37m x 3.55m |
| Dressing Room | 3.90m x 4.73m |
First Floor Plan – The Coleburn

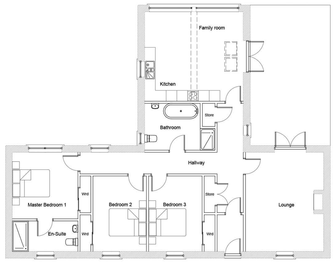
THE HARRIS – 3 BEDROOMS

Front Elevation – The Harris

Side Elevation – The Harris

Rear Elevation – The Harris

Back Elevation – The Harris
Floor Plans – The Harris

Indicative Room Dimensions
| Lounge | 4.35m x 5.52m |
| Kitchen / Family | 4.98m x 5.50m |
| Master Bedroom 1 | 3.66m x 3.70m |
| Family Room | 5.07m x 5.24m |
| En-Suite | 1.70m x 3.66m |
| Shower Room | 2.00m x 2.74m |
| Bedroom 2 | 2.98m x 4.20m |
| Bedroom 3 | 2.98m x 4.20m |
| Bathroom | 2.60m x 3.90m |
THE JURA – 5 BEDROOMS

Image used is for indicative purposes only and painted timber finish is used in place of granite for the Chapelton Development

Front Elevation – The Jura

Side Elevation – The Jura

Rear Elevation – The Jura

Side Elevation – The Jura
The Jura – Floor Plans
Ground Floor Plan – The Jura

Indicative Room Dimensions
| Lounge | 4.48m x 7.53m |
| Kitchen/Dining Area | 3.89m x 6.86m |
| Pantry | 1.10m x 2.34m |
| Family Room | 4.76m x 5.99m |
| W.C. | 1.10m x 2.28m |
| Utility Room | 1.95m x 2.70m |
| Garage | 5.90m x 6.06m |
Indicative Room Dimensions
| Bedroom 1 Master | 4.24m x 5.20m |
| Ensuite | 1.70m x 3.30m |
| Dressing | 1.90m x 2.18m |
| Bedroom 2 | 2.70m x 3.90m |
| Bedroom 3 | 3.31m x 3.90m |
| En-suite | 2.04m x 2.09m |
| Bedroom 4 | 2.82m x 3.31m |
| Bedroom 5 | 4.10m x 4.72m |
| Bathroom | 2.09m x 3.30m |
First Floor Plan – The Jura


















